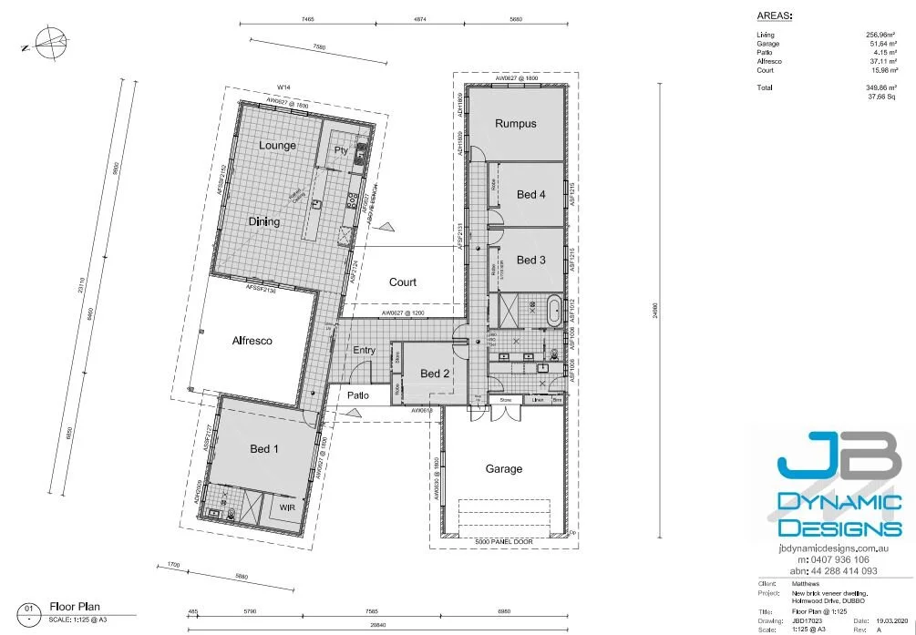
New House Build, Dubbo
This new build was inspired by a New Zealand house design that our client loved.​
A pavilion-inspired, brick veneer home, with Colorbond feature cladding in Ironstone, the key design specs for this job were a flowing living area, a large kitchen with good storage and private space for both parents and kids.